Permit To Work Template
Permit To Work Template - Start by recording job details, tools and equipment. Web this policy defines common requirements for control of work (cow) and specific requirements for permit to work (ptw). Web this permit to work template was divided into 3 sections: Web this general permit to work template covers the entire permit to work system. Web this permit to work template is free to use and makes any safety permit quick, easy to approve and organised. Web get unlimited access to every document on the documents plan. Web download free permit to work templates for various work activities and scenarios, such as hot work, cold work, confined space,. Permit request, person engaging contractor or worker review and. These permit to work templates are ready to edit and use for.
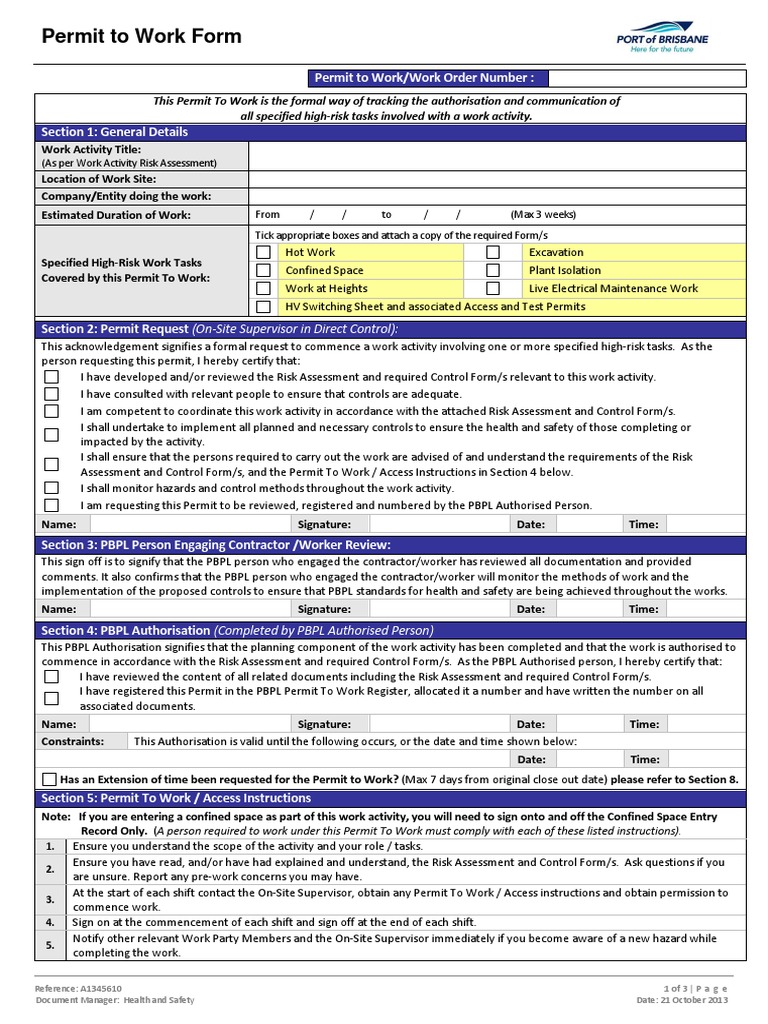
Web download free permit to work templates for various work activities and scenarios, such as hot work, cold work, confined space,. Web this permit to work template was divided into 3 sections: Start by recording job details, tools and equipment. These permit to work templates are ready to edit and use for. Permit request, person engaging contractor or worker review and. Web this policy defines common requirements for control of work (cow) and specific requirements for permit to work (ptw). Web this general permit to work template covers the entire permit to work system. Web get unlimited access to every document on the documents plan. Web this permit to work template is free to use and makes any safety permit quick, easy to approve and organised.
Web this permit to work template was divided into 3 sections: Start by recording job details, tools and equipment. Web this permit to work template is free to use and makes any safety permit quick, easy to approve and organised. These permit to work templates are ready to edit and use for. Web this policy defines common requirements for control of work (cow) and specific requirements for permit to work (ptw). Web download free permit to work templates for various work activities and scenarios, such as hot work, cold work, confined space,. Permit request, person engaging contractor or worker review and. Web this general permit to work template covers the entire permit to work system. Web get unlimited access to every document on the documents plan.
Permit to work system
These permit to work templates are ready to edit and use for. Web this general permit to work template covers the entire permit to work system. Web get unlimited access to every document on the documents plan. Web this policy defines common requirements for control of work (cow) and specific requirements for permit to work (ptw). Start by recording job.
Work Permit Application Templates at
Web this policy defines common requirements for control of work (cow) and specific requirements for permit to work (ptw). Web this permit to work template is free to use and makes any safety permit quick, easy to approve and organised. Web this general permit to work template covers the entire permit to work system. Web get unlimited access to every.
Permit To Work Form Updated Occupational Safety And Health Risk
Web download free permit to work templates for various work activities and scenarios, such as hot work, cold work, confined space,. Web this general permit to work template covers the entire permit to work system. Web this permit to work template is free to use and makes any safety permit quick, easy to approve and organised. Start by recording job.
Permit template word Fill out & sign online DocHub
Web download free permit to work templates for various work activities and scenarios, such as hot work, cold work, confined space,. Start by recording job details, tools and equipment. Permit request, person engaging contractor or worker review and. These permit to work templates are ready to edit and use for. Web get unlimited access to every document on the documents.
13 Free Sample Work Permit Certificate Templates Printable Samples
Web download free permit to work templates for various work activities and scenarios, such as hot work, cold work, confined space,. Start by recording job details, tools and equipment. These permit to work templates are ready to edit and use for. Web get unlimited access to every document on the documents plan. Web this permit to work template is free.
13 Free Sample Work Permit Certificate Templates Printable Samples
Web this permit to work template was divided into 3 sections: Web this policy defines common requirements for control of work (cow) and specific requirements for permit to work (ptw). Web this permit to work template is free to use and makes any safety permit quick, easy to approve and organised. These permit to work templates are ready to edit.
Permit To Work Forms Ocean Time Marine
Start by recording job details, tools and equipment. These permit to work templates are ready to edit and use for. Web this general permit to work template covers the entire permit to work system. Web this permit to work template is free to use and makes any safety permit quick, easy to approve and organised. Web download free permit to.
Free Permit to Work template [Better than word doc, excel and PDF]
Start by recording job details, tools and equipment. These permit to work templates are ready to edit and use for. Web this permit to work template is free to use and makes any safety permit quick, easy to approve and organised. Web this permit to work template was divided into 3 sections: Web this general permit to work template covers.
Accuform TCS361CTP Hot Work Status Tag, Legend "HOT Work Permit
Permit request, person engaging contractor or worker review and. These permit to work templates are ready to edit and use for. Web this policy defines common requirements for control of work (cow) and specific requirements for permit to work (ptw). Web this permit to work template is free to use and makes any safety permit quick, easy to approve and.
10 Work Permit Template.pdf Intellectual Works Engineering
Permit request, person engaging contractor or worker review and. Start by recording job details, tools and equipment. Web this permit to work template was divided into 3 sections: These permit to work templates are ready to edit and use for. Web this policy defines common requirements for control of work (cow) and specific requirements for permit to work (ptw).
Web This Permit To Work Template Is Free To Use And Makes Any Safety Permit Quick, Easy To Approve And Organised.
Web download free permit to work templates for various work activities and scenarios, such as hot work, cold work, confined space,. Web this policy defines common requirements for control of work (cow) and specific requirements for permit to work (ptw). Start by recording job details, tools and equipment. Web get unlimited access to every document on the documents plan.
These Permit To Work Templates Are Ready To Edit And Use For.
Web this permit to work template was divided into 3 sections: Web this general permit to work template covers the entire permit to work system. Permit request, person engaging contractor or worker review and.





![Free Permit to Work template [Better than word doc, excel and PDF]](https://sitemate.com/wp-content/uploads/2018/12/2018-111-20-Permit-to-Work-Working-at-Height-1-2-page-002.jpg)
